The Planning Process
At Pure Panels, we work closely with Architects and Architectural Designers to bring their creative visions to life—delivered with precision, performance, and cost certainty. Through our collaborative process, we provide a fully engineered structural package that can be delivered to any site in Aotearoa New Zealand at a fixed price.
Our packages include:
Detailed Shop Drawings
Comprehensive plans that support the design intent and enable efficient onsite assembly.
Installation Guides
Clear instructions so the builder can erect insulated walls, roof, and internal partitions within ten days.
Fast Weather-Tightness
Once the structure is enclosed, internal finishing can commence without delay, streamlining the build schedule.
Engineering Design Report
Prepared by an IPENZ-qualified Engineer, this report includes site-specific and structural calculations, quality control checkpoints, and inspection schedules. It is consent-ready and can be included in the regulatory documentation.
Below, you’ll find representative drawings and illustrations that walk through each stage of the process—from concept to completion.
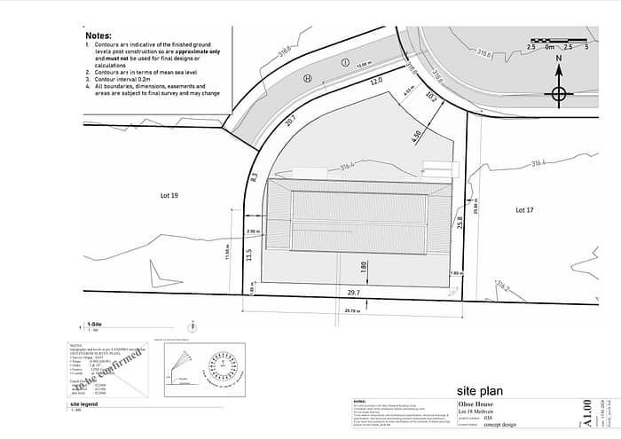
1. Architect’s Concept Massing Model Plans
Illustrates the initial architectural vision, including building form, site orientation, and spatial relationships using simplified massing models.
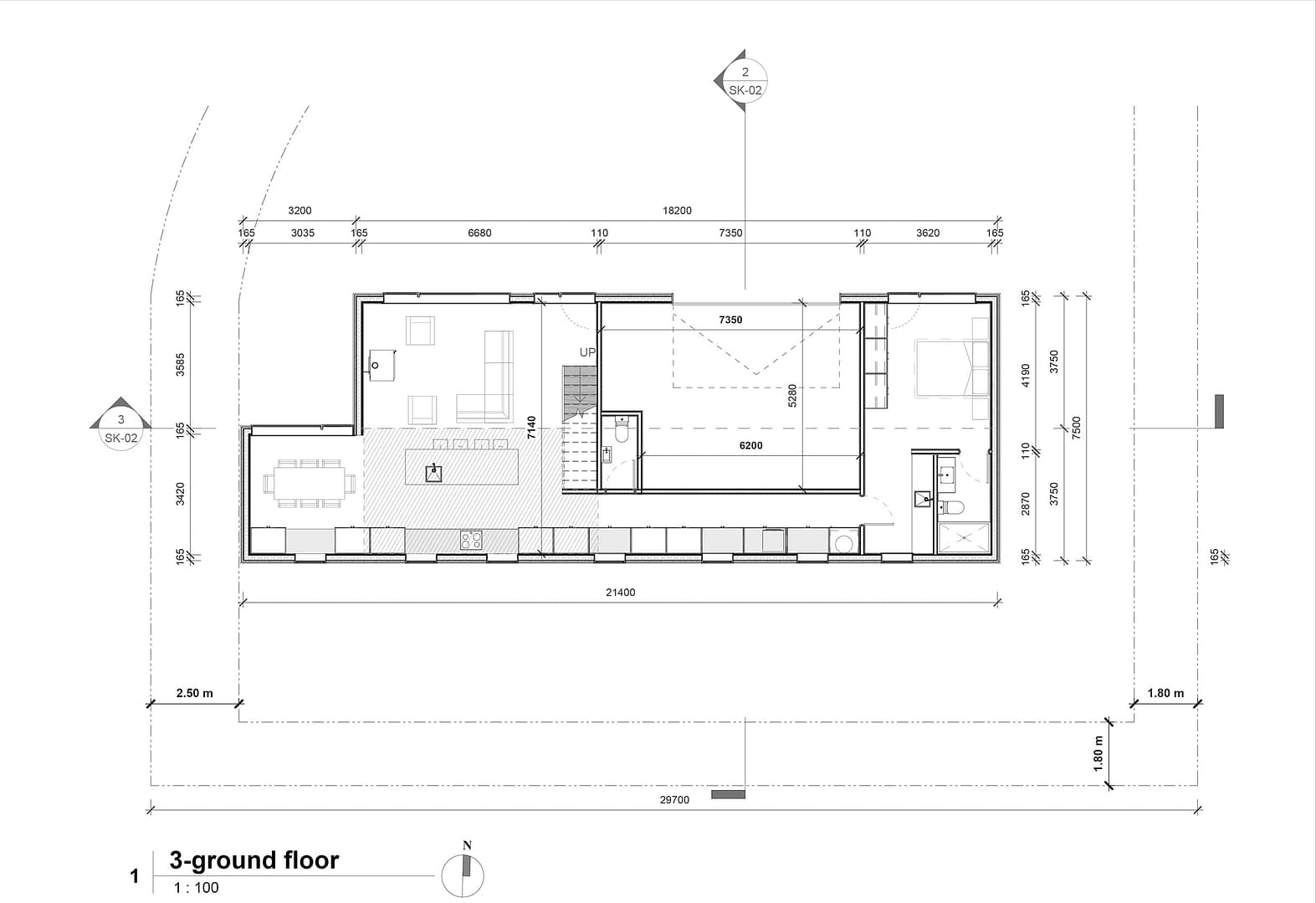
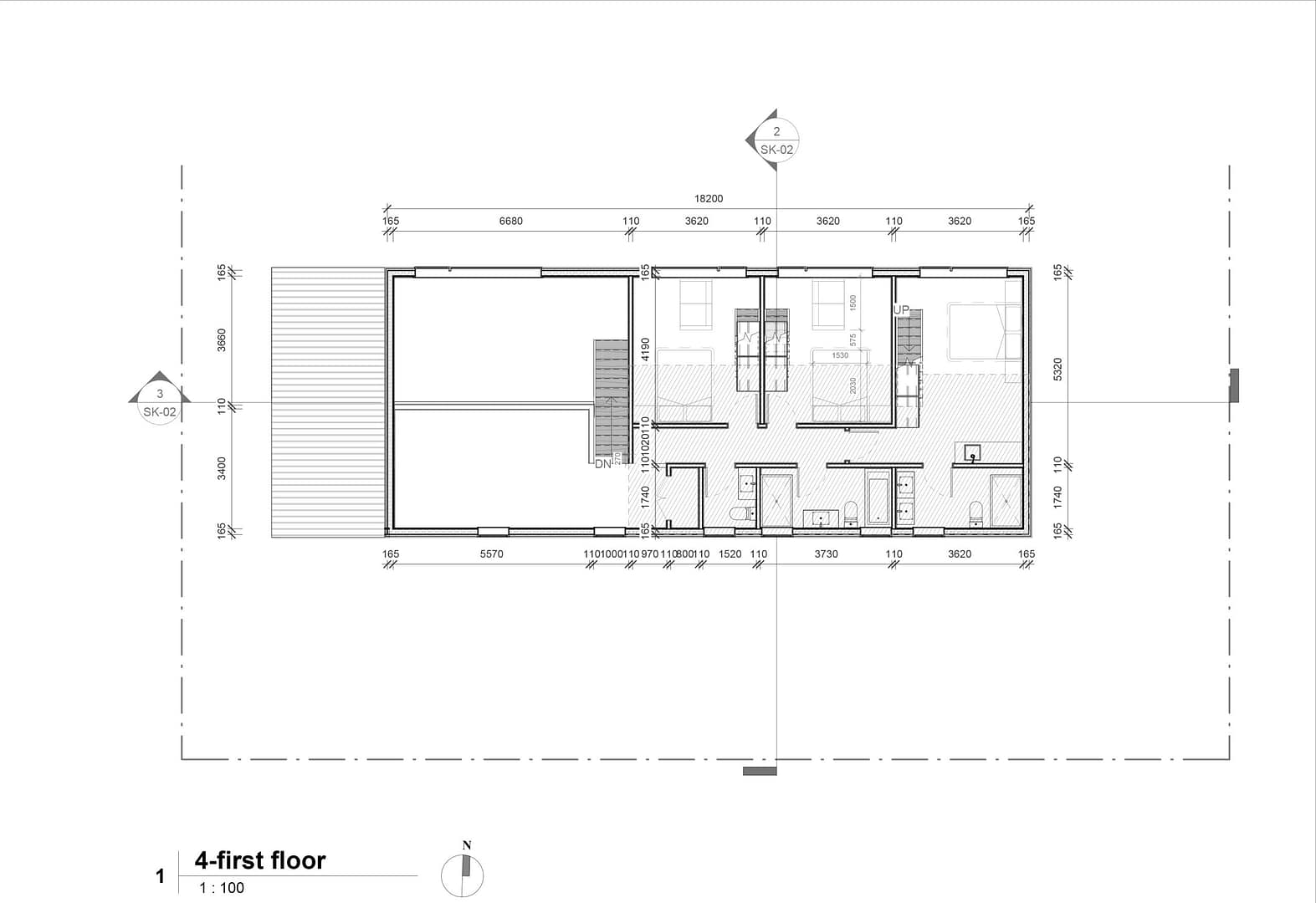
2. Architect’s Concept Revised Plans
Refined concept plans representing the sixth design iteration, capturing key changes
and updated layouts from earlier versions.
3. Concept Renderings
Photorealistic and conceptual visualisations that communicate materiality, daylighting, and the architectural character of the proposed home.
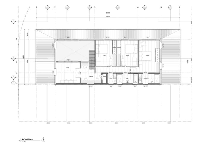
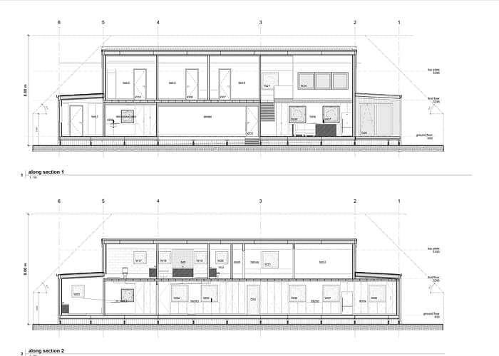
4. Architect’s Consent Drawings
Detailed documentation prepared for building consent, including plans, sections, elevations, and compliance information.
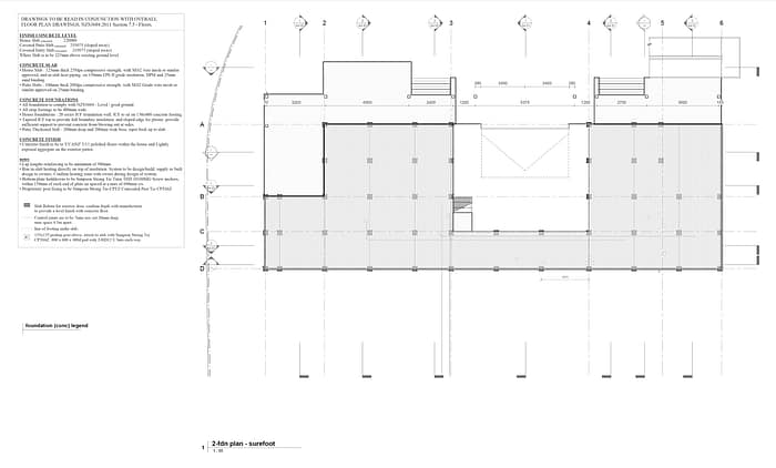
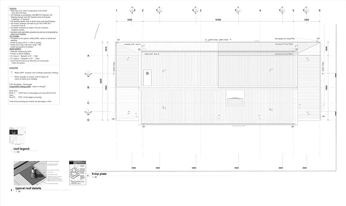
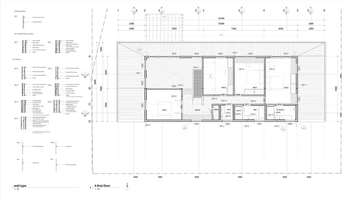
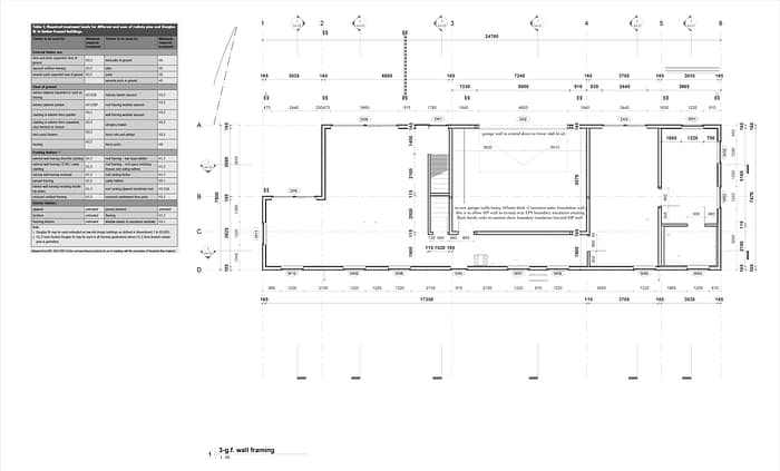
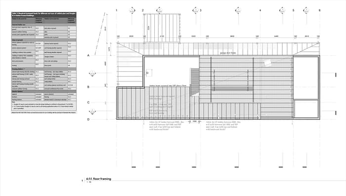
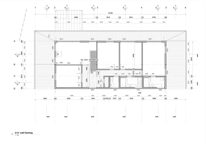
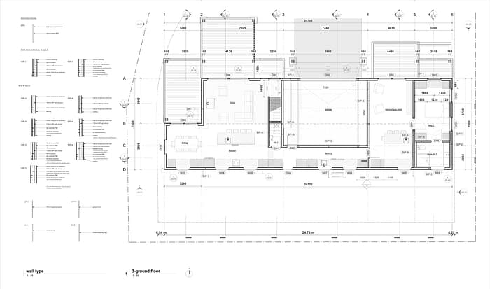
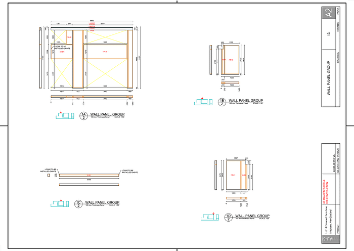
5. Panel General Arrangement (GA) Plans
Precise layout of all structural insulated panels (SIPs), showing dimensions, orientation, panel joints, and openings for doors and windows.
6. Panel Installation Sequencing Plan
Step-by-step illustrated guide to on-site assembly, sequencing the erection of SIP walls, roofs, and internal elements for rapid enclosure.







































































